• 42.5046
  • 49.8661
  • 56.7839

Muğla Ortaca Mergenlide 417 M2 İmarlı Projesi Hazır Arsa Satılık

ArsaSatılık

Muğla Ortaca Mergenlide 417 M2 İmarlı Projesi Hazır Arsa Satılık

ArsaSatılık
  • Emlak Fiyatı
    ₺ -
  • Emlak Tarihi
    05-12-2022
  • Emlak No
    1322
  • Emlak Bölgesi
  • Emlak Durumu
    Satılık
  • Emlak Türü
    Arsa
  • Toplam m²
    417m²
  • Kullanılabilir m²
    100m²
  • İmar Durumu
    Konut
  • Kaks - Emsal
    % 15 / 30
  • Gabari - Metre
    6.50
  • Tapu Durumu
    Müstakil Parsel
  • Kat Karşılığı
    Hayır
  • Parselli
    Evet
  • Zemin Etüdlü
    Belirtilmemiş
  • Krediye Uygun
    Evet
  • Takasa Uygun
    Hayır

Açıklama

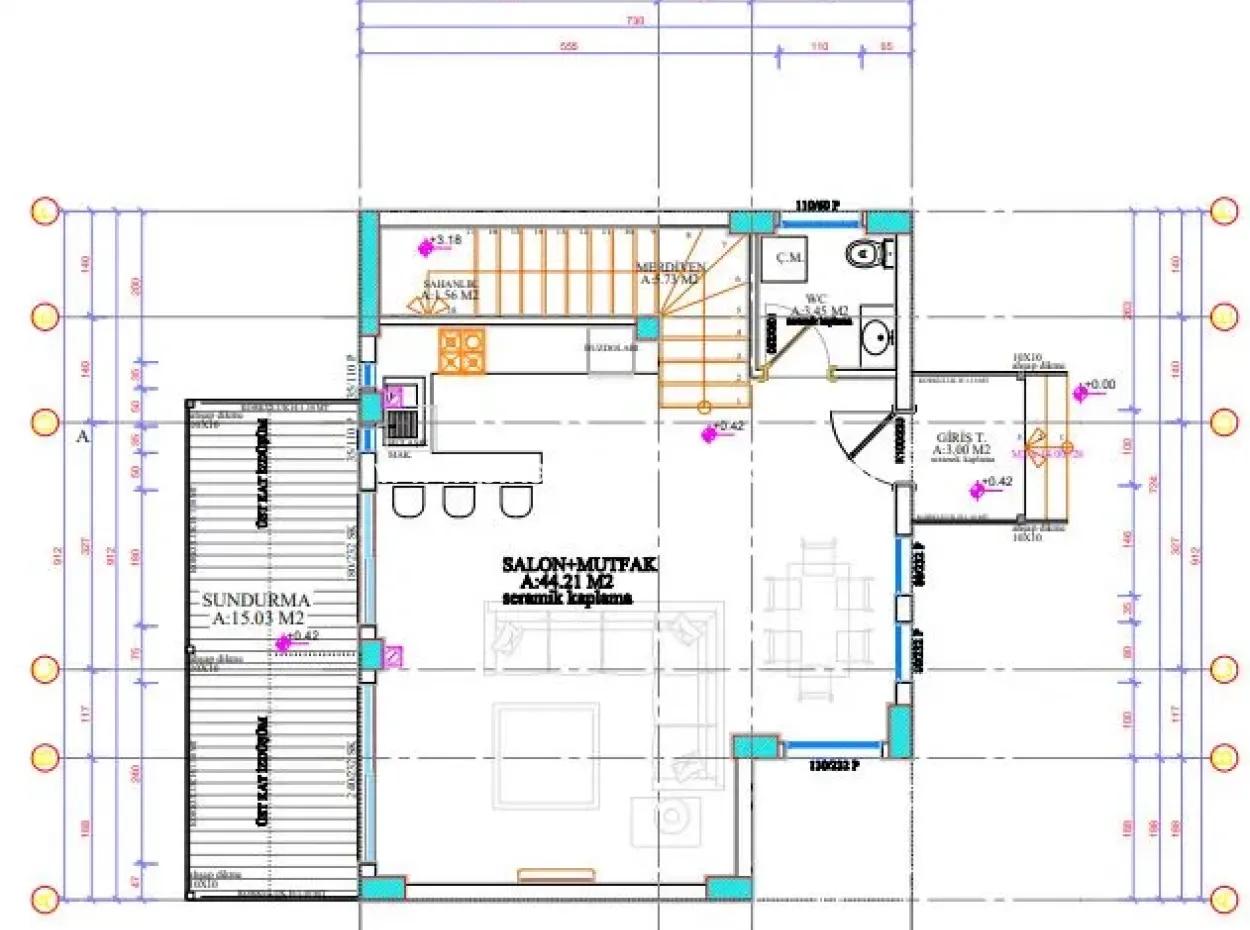
Muğla Ortaca Mergenli de Ortaca Belediyesi nden onaylı 417 m2 % 15 / 30 2 kat imarlı arsa satılık. Müstakil tapulu. Arsa için belediyeden onaylı 100 m2 dubleks villa projesi hazır. Amerikan salon ve mutfak 3 yatak odası 2 banyo wc li. Proje tadilatı yapılabilir. Sarıgerme Plajı ve Dalaman Havaalanı yakın mesafede. 



Özellikler

  • Genel Özellikler
    İfrazlı
    Köşe Parsel
    Parselli
    Projeli
  • Altyapı
    Arıtma
    Doğalgaz
    Elektrik
    Kanalizasyon
    Sanayi Elektriği
    Sondaj & Kuyu
    Su
    Telefon
    Yolu Açılmamış
    Yolu Açılmış
    Yolu Yok
    Zemin Etüdü
  • Konum
    Ana Yola Yakın
    Cadde Üzeri
    Caddeye Yakın
    Denize Sıfır
    Denize Yakın
    Havaalanına Yakın
    Otobana Yakın
    Toplu Ulaşıma Yakın
  • Manzara
    Boğaz
    Cadde
    Dağ
    Deniz
    Doğa
    Göl
    Şehir
    Nehir
    Park
    Vadi
    Yeşil Alan

Harita

Gayrimenkul toplam 49.851 kez görüntülenmiştir.
qrcode

Satılık Arsa

Muğla Ortaca Mergenlide 417 M2 İmarlı Projesi Hazır Arsa Satılık
Emlak No: 1322

Muğla Ortaca Mergenlide 417 M2 İmarlı Projesi Hazır Arsa Satılık

qrcode
  • Emlak Fiyatı
    ₺ -
  • Emlak Tarihi
    05-12-2022
  • Emlak No
    1322
  • Emlak Bölgesi
  • Emlak Durumu
    Satılık
  • Emlak Türü
    Arsa
  • Toplam m²
    417m²
  • Kullanılabilir m²
    100m²
  • İmar Durumu
    Konut
  • Kaks - Emsal
    % 15 / 30
  • Gabari - Metre
    6.50
  • Tapu Durumu
    Müstakil Parsel
  • Kat Karşılığı
    Hayır
  • Parselli
    Evet
  • Zemin Etüdlü
    Belirtilmemiş
  • Krediye Uygun
    Evet
  • Takasa Uygun
    Hayır

Açıklama

Muğla Ortaca Mergenli de Ortaca Belediyesi nden onaylı 417 m2 % 15 / 30 2 kat imarlı arsa satılık. Müstakil tapulu. Arsa için belediyeden onaylı 100 m2 dubleks villa projesi hazır. Amerikan salon ve mutfak 3 yatak odası 2 banyo wc li. Proje tadilatı yapılabilir. Sarıgerme Plajı ve Dalaman Havaalanı yakın mesafede.